Reconversie en uitbreidingsproject met woningen in Affligem
Callebaut
Korte omschrijving
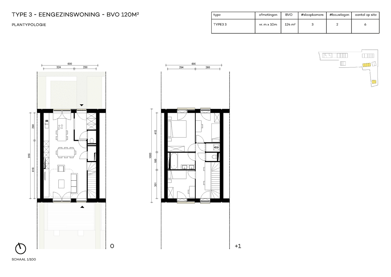
Reconversie van een voormalige ambachtelijke zone via een inbreidingsproject met woningen. Waarbij zowel renovatie als nieuwbouw wordt voorzien.
Datum
2021-2027
Locatie
Klapstraat, Affligem
Type
Woningen
Bouwheer
Woenst + Vekamp
Architect
Status
In ontwikkeling
